Servizio Restauro e Ristrutturazioni, Interior Design
Tipologia Interior Design
Dove Brescia
Il Progetto:

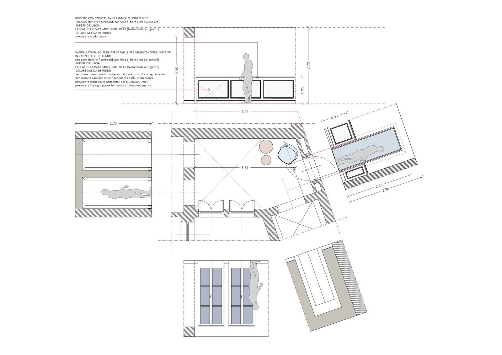
Ristrutturazione che valorizza la pavimentazione esistente in pregiato marmo, preservandone l’eleganza e il carattere. Arredi e boiserie sono stati progettati su misura, così come la ringhiera della scala in marmo e la nuova scala che conduce all’altana, pensata per conferire leggerezza e armonia agli spazi.
La nuova boiserie su disegno è la base per la carta da parati Misha Wall Coverings, realizzata con esclusivi tessuti in seta dipinti a mano, raffiguranti la magnolia giapponese, per un tocco di raffinata artigianalità.

Scroll